1. 港区賃貸トップ > 
  2. の賃貸物件一覧 > 
  3. メインステージ麻布十番2のお部屋情報

メインステージ麻布十番2 麻布十番の分譲マンション

 メインステージ麻布十番2のご紹介です。
分譲賃貸マンションです。
外観タイル張り・麻布十番徒歩1分です。
麻布十番の分譲賃貸マンションはタワーハウス管理へご相談ください。(*^_^*)

物件名 メインステージ麻布十番2
交通 東京メトロ南北線 麻布十番駅 徒歩1分
都営大江戸 麻布十番駅 徒歩1分
都営大江戸 赤羽橋駅 徒歩6分

所在地

港区東麻布3-10-2

地図
構造/総階数 RC造/地上11階建て 築年月 2002年08月
家賃 85,000円~97,000円 管理費 0円~12,000円
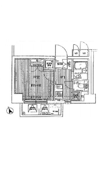
間取 1K 面積 20.52㎡~20.60㎡
駐車場 なし
物件設備 分譲マンション、外観タイル貼り、TVモニター付インターフォン、オートロック、宅配ボックス、エレベータ、防犯カメラ、システムキッチン、フローリング、バルコニー
備考 購入、売却相談もお気軽にお問い合わせ下さい。諸条件などお部屋によって異なります(詳細、募集の有無などお気軽にお問い合わせ下さい)
問合せ番号 2336
 
拡大写真

マウスオーバー:拡大します
 

周辺地図



ストリートビュー

検索結果一覧に戻る
駅から探す エリアから探す 条件から探す

メインステージ麻布十番2近辺の物件

ガラ・ステージ麻布十番

ガラ・ステージ麻布十番

1K~1LDK
84,000円~175,000円

ルーブル南麻布

ルーブル南麻布

1K
80,000円~125,000円

ステージグランデ南麻布

ステージグランデ南麻布

1R
79,000円~95,000円

スカイコート麻布十番

スカイコート麻布十番

1K
81,500円~100,500円

ご成約済みのお部屋

検索結果一覧に戻る