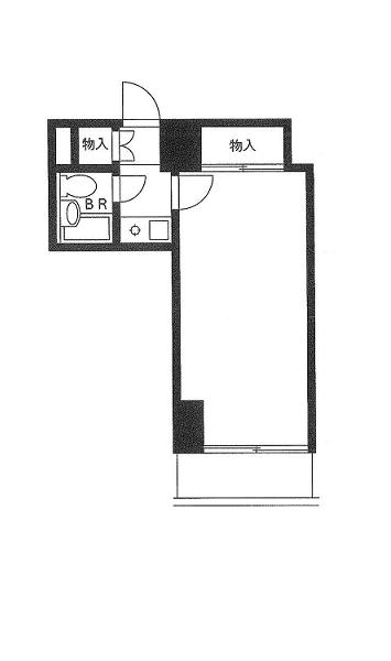
プライムステイ築地 築地の分譲賃貸マンション
築地駅徒歩3分、1階にコインランドリーあります。光ファイバー導入済みです。フリーレントキャンペーン中です。連帯保証人不要システム利用できます。
- 新橋駅周辺の賃貸情報
- 浜松町駅周辺の賃貸情報
- 田町駅周辺の賃貸情報
- 品川駅周辺の賃貸情報
- 大崎駅周辺の賃貸情報
- 五反田駅周辺の賃貸情報
- 目黒駅周辺の賃貸情報
- 恵比寿駅周辺の賃貸情報
- 銀座駅周辺の賃貸情報
- 月島駅周辺の賃貸情報
- 赤坂駅周辺の賃貸情報
- 白金高輪駅周辺の賃貸情報
- 麻布十番駅周辺の賃貸情報
- 六本木駅周辺の賃貸情報
- 新橋・虎ノ門エリア
- 新橋・虎ノ門エリア(事務所・店舗)
- 浜松町エリア
- 芝エリア
- 湾岸エリア
- 麻布十番エリア
- 赤坂エリア
- 六本木・青山エリア
- 高輪・白金エリア
- 銀座・築地エリア
- 月島エリア
- 大崎・五反田エリア
- 恵比寿・目黒エリア
- 注目のタワーマンション
- 物件
- 分譲マンション
- タワーマンション
- 新築
- コンシェルジュ
- SOHO可
- デザイナーズ
- ペット可
- 礼金ゼロ
- 楽器相談
- 駐車場有り
- バイク置き場
- プレミアマンション
- ヴィンテージマンション
- 免震・制震マンション
プライムステイ築地近辺の物件
