=>_%dt_path%_ not found
ガーラ東日本橋 3階 1Kの賃貸・部屋情報 |
  1. 港区賃貸トップ > 
  2. の賃貸物件一覧 > 
  3. ガーラ東日本橋の賃貸情報 > 
  4. 3階 1K

ガーラ東日本橋

3階 1K

 

契約済み

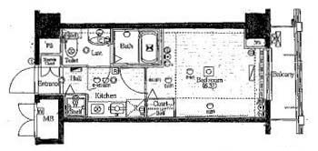
間取り
この物件に問い合わせる

物件詳細に戻る

物件名 ガーラ東日本橋
交通 総武中央 浅草橋駅 徒歩3分
新宿線 馬喰横山駅 徒歩6分
浅草線 東日本橋駅 徒歩7分
日比谷線 小伝馬町駅 徒歩10分
総武線 馬喰町駅 徒歩3分
所在地

中央区日本橋馬喰町2-4-15

地図
家賃
管理費
間取 1K
面積 22.05㎡
敷金
礼金
入居 相談
構造 SRC造
所在階/総階数 3階/地上13階建て
築年月 2003年11月
駐車場 なし
物件設備 分譲マンション、外観タイル貼り、TVモニター付インターフォン、オートロック、宅配ボックス、エレベータ、防犯カメラ、CSアンテナ、BSアンテナ、室内洗濯機置場、バストイレ別、シャワートイレ、独立洗面、浴室乾燥機、ガスコンロ、フローリング、エアコン、バルコニー
備考
問合せ番号 336-9
 
拡大写真

マウスオーバー:拡大します
 

周辺地図



ストリートビュー

*この物件へのお問い合わせはタワーハウス管理まで*

03-6430-6698

info@tower-house.co.jp

お問い合わせフォーム
近くの物件
ヴェラハイツ日本橋箱崎町

ヴェラハイツ日本橋箱崎町

1R~3DK
72,000円~160,000円

カスタリア東日本橋3

カスタリア東日本橋3

1K
72,000円~97,000円

三敬中洲マンション

三敬中洲マンション

1R~1DK
64,000円~89,000円

エステムプラザ日本橋

エステムプラザ日本橋

1R~1LDK
78,890円~134,790円

駅から探す エリアから探す 条件から探す

ご成約済みのお部屋