- 港区賃貸トップ >
 - の賃貸物件一覧 >
 - 大川端リバーシティ21 センチュリーパークタワーの賃貸情報 >
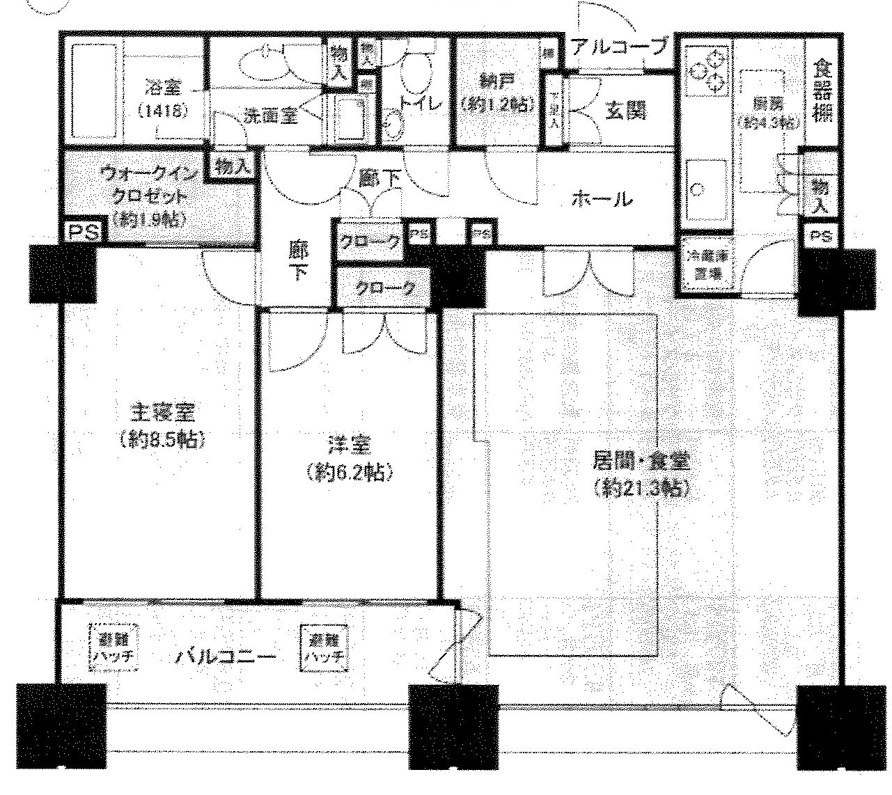
 - 48階 2LDK
 
大川端リバーシティ21 センチュリーパークタワー
48階 2LDK
 月島駅徒歩8分、リバーサイドの高級賃貸タワーマンション「リバーシティ21センチュリーパークタワー」48階2LDKのご紹介です!
中学校・小学校も隣接してますので、お子様の通学も安心ですね(^O^)
パーティールーム、ゲストルームの完備のホテル並みの充実した設備です!2000年度グッドデザイン賞受賞マンション!24時間有人管理もオススメポイントですよ(^v^)
駐車場もございますので空き状況はお気軽にお問い合わせ下さい!
こちらのお部屋はお台場・レインボーブリッジビューになります(*^_^*)
中央区の賃貸マンションの事ならタワーハウス管理まで(*^_^*)
    





