=>_%dt_path%_ not found
ベルファース新橋 5階 1Kの賃貸・部屋情報 |
  1. 港区賃貸トップ > 
  2. の賃貸物件一覧 > 
  3. ベルファース新橋の賃貸情報 > 
  4. 5階 1K

ベルファース新橋

5階 1K

 デザイナーズマンションの1Kタイプです。

契約済み

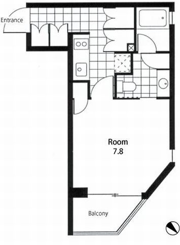
間取り
この物件に問い合わせる

物件詳細に戻る

物件名 ベルファース新橋
交通 三田線 御成門駅 徒歩5分
銀座線 新橋駅 徒歩8分
山手線 新橋駅 徒歩8分
大江戸 大門駅 徒歩8分
浅草線 大門駅 徒歩8分
所在地

港区新橋6-6-1

地図
家賃
管理費
間取 1K
面積 29.19㎡
敷金
礼金
入居 相談
構造 RC造
所在階/総階数 5階/地上10階建て
築年月 2004年06月
駐車場 なし
物件設備 分譲マンション、TVモニター付インターフォン、オートロック、宅配ボックス、エレベータ、防犯カメラ、デザイナーズ、CSアンテナ、BSアンテナ、ドラム式洗濯乾燥機付、シャワートイレ、システムキッチン、フローリング、角部屋、バルコニー
備考 諸条件などお部屋によって異なります(詳細、募集の有無などお気軽にお問い合わせ下さい)
問合せ番号 2873-5
 
拡大写真

マウスオーバー:拡大します
 

周辺地図



ストリートビュー

*この物件へのお問い合わせはタワーハウス管理まで*

03-6430-6698

info@tower-house.co.jp

お問い合わせフォーム
近くの物件
ミリオンタワー虎ノ門

ミリオンタワー虎ノ門

1K~1LDK
85,000円~189,000円

ParkCube愛宕山Tower

ParkCube愛宕山Tower

1K~3LDK
124,000円~510,000円

MOMENTO SHIODOME(モメント汐留)

MOMENTO SHIODOME(モメント汐留)

1LDK~3LDK
27,500円~484,000円

DewLavan新橋(デューラバン新橋)

DewLavan新橋(デューラバン新橋)

1K~1DK
88,000円~145,000円

駅から探す エリアから探す 条件から探す

ご成約済みのお部屋