- 港区賃貸トップ >
- の賃貸物件一覧 >
- レジディア日本橋馬喰町(旧パシフィックレジデンス日本橋馬喰町)の賃貸情報 >
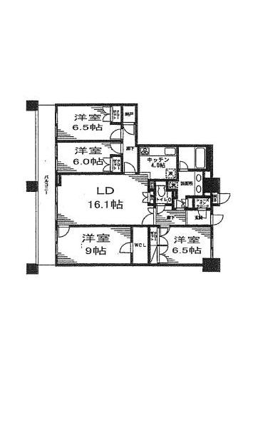
- 17階 4LDK
レジディア日本橋馬喰町(旧パシフィックレジデンス日本橋馬喰町)
17階 4LDK
連帯保証人不用物件!ペット可!(小型犬・猫は2匹までOK!)駐車場・バイク置場あり、ピアノ相談可の3LDKの賃貸マンション

|  |  |  | ||
|  |  | |||
|  | ||||
 
     =>_%dt_path%_ not found
連帯保証人不用物件!ペット可!(小型犬・猫は2匹までOK!)駐車場・バイク置場あり、ピアノ相談可の3LDKの賃貸マンション

|  |  |  | ||
|  |  | |||
|  | ||||
 
     
