=>_%dt_path%_ not found
ラフィーヌ芝浦 8階 2LDKの賃貸・部屋情報 |
  1. 港区賃貸トップ > 
  2. の賃貸物件一覧 > 
  3. ラフィーヌ芝浦の賃貸情報 > 
  4. 8階 2LDK

ラフィーヌ芝浦

8階 2LDK

 デザイナーズ
オール電化
メゾネット
2LDKタイプです

契約済み

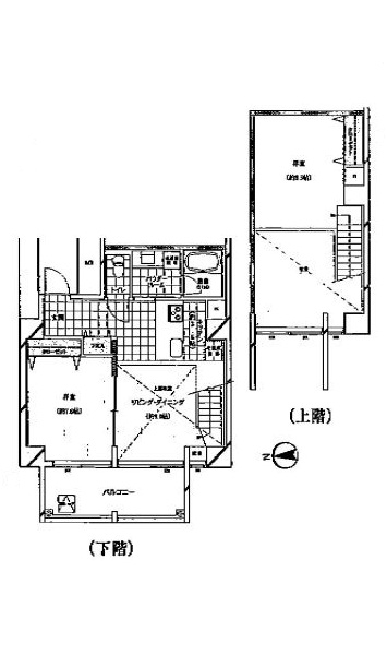
間取り
この物件に問い合わせる

物件詳細に戻る

物件名 ラフィーヌ芝浦
交通 山手線 田町駅 徒歩7分
京浜東北線 田町駅 徒歩7分
浅草線 三田駅 徒歩8分
三田線 三田駅 徒歩8分
所在地

港区芝浦2-13-3

地図
家賃
管理費
間取 2LDK
面積 67.68㎡
敷金 要保証会社利用物件
礼金 キャンペーン中
入居 相談
構造 RC造
所在階/総階数 8階/地上10階建て
築年月 2005年11月
駐車場
物件設備 TVモニター付インターフォン、オートロック、エレベータ、デザイナーズ、CATV、室内洗濯機置場、バストイレ別、シャワートイレ、独立洗面、システムキッチン、フローリング、エアコン、メゾネット、バルコニー
備考 諸条件などお部屋によって異なります(詳細、募集の有無などお気軽にお問い合わせ下さい)
問合せ番号 3158-5
 
拡大写真

マウスオーバー:拡大します
 

周辺地図



ストリートビュー

*この物件へのお問い合わせはタワーハウス管理まで*

03-6430-6698

info@tower-house.co.jp

お問い合わせフォーム
近くの物件
パークタワー芝浦ベイワードアーバンウイング

パークタワー芝浦ベイワードアーバンウイング

1LDK~3SLDK
178,000円~374,000円

ベルファース芝浦タワー

ベルファース芝浦タワー

1R~2SLDK
93,000円~248,000円

東京ベイテラス

東京ベイテラス

1K~1LDK
92,000円~187,000円

ザ・タワー芝浦

ザ・タワー芝浦

1R~1LDK
99,000円~207,000円

駅から探す エリアから探す 条件から探す

ご成約済みのお部屋