=>_%dt_path%_ not found
PERCH南青山(パーチ南青山) 2階 1LDKの賃貸・部屋情報 |
  1. 港区賃貸トップ > 
  2. の賃貸物件一覧 > 
  3. PERCH南青山(パーチ南青山)の賃貸情報 > 
  4. 2階 1LDK

PERCH南青山(パーチ南青山)

2階 1LDK

 賃貸マンション
1LDKタイプのお部屋です。

契約済み

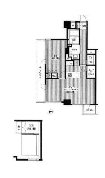
間取り
この物件に問い合わせる

物件詳細に戻る

物件名 PERCH南青山(パーチ南青山)
交通 銀座線 表参道駅 徒歩4分
半蔵門線 表参道駅 徒歩4分
千代田線 表参道駅 徒歩4分
銀座線 外苑前駅 徒歩9分
千代田線 乃木坂駅 徒歩15分
所在地

港区南青山3-15-17

地図
家賃
管理費
間取 1LDK
面積 61.62㎡
敷金 事務所利用の場合はプラス1ヶ月
礼金 要保証会社利用
入居 相談
構造 RC造
所在階/総階数 2階/地上5階建て
築年月 2005年08月
駐車場
物件設備 外観タイル貼り、TVモニター付インターフォン、オートロック、宅配ボックス、エレベータ、防犯カメラ、SOHO可、楽器相談、ピアノ可、駐輪場、CATV、CSアンテナ、BSアンテナ、室内洗濯機置場、バストイレ別、シャワートイレ、独立洗面、追い焚き、浴室乾燥機、システムキッチン、ガスコンロ、フローリング、床暖房、エアコン、バルコニー
備考 諸条件などお部屋によって異なります(詳細、募集の有無などお気軽にお問い合わせ下さい)
問合せ番号 3974-10
 
拡大写真

マウスオーバー:拡大します
 

周辺地図



ストリートビュー

*この物件へのお問い合わせはタワーハウス管理まで*

03-6430-6698

info@tower-house.co.jp

お問い合わせフォーム
近くの物件
ザ・パークハウス西麻布レジデンス

ザ・パークハウス西麻布レジデンス

1R~3LDK
185,000円~750,000円

パークアクシス六本木檜町公園

パークアクシス六本木檜町公園

1R~2LDK
149,000円~339,000円

レジディア西麻布

1K~4LDK
136,000円~735,000円

キャビンアリーナ南青山

キャビンアリーナ南青山

1R
115,000円~390,000円

駅から探す エリアから探す 条件から探す

ご成約済みのお部屋