=>_%dt_path%_ not found
アンビエンテ芝浦 9階 2DKの賃貸・部屋情報 |
  1. 港区賃貸トップ > 
  2. の賃貸物件一覧 > 
  3. アンビエンテ芝浦の賃貸情報 > 
  4. 9階 2DK

アンビエンテ芝浦

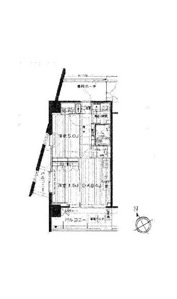
9階 2DK

 賃貸マンション
2DKタイプのお部屋です。

契約済み

間取り
この物件に問い合わせる

物件詳細に戻る

物件名 アンビエンテ芝浦
交通 山手線 田町駅 徒歩6分
京浜東北線 田町駅 徒歩6分
浅草線 三田駅 徒歩10分
三田線 三田駅 徒歩10分
所在地

港区芝浦3-19-17

地図
家賃
管理費
間取 2DK
面積 41.00㎡
敷金
礼金
入居 相談
構造 RC造
所在階/総階数 9階/地上11階建て
築年月 2012年02月
駐車場
物件設備 新築、外観タイル貼り、TVモニター付インターフォン、オートロック、宅配ボックス、エレベータ、防犯カメラ、CSアンテナ、BSアンテナ、室内洗濯機置場、バストイレ別、シャワートイレ、独立洗面、追い焚き、浴室乾燥機、IHクッキングヒーター、ガスコンロ、フローリング、エアコン、角部屋、バルコニー
備考 諸条件などお部屋によって異なります(詳細、募集の有無などお気軽にお問い合わせ下さい)
問合せ番号 5294-19
 
拡大写真

マウスオーバー:拡大します
 

周辺地図



ストリートビュー

*この物件へのお問い合わせはタワーハウス管理まで*

03-6430-6698

info@tower-house.co.jp

お問い合わせフォーム
近くの物件
パークタワー芝浦ベイワードアーバンウイング

パークタワー芝浦ベイワードアーバンウイング

1LDK~3SLDK
178,000円~374,000円

ベルファース芝浦タワー

ベルファース芝浦タワー

1R~2SLDK
93,000円~248,000円

東京ベイテラス

東京ベイテラス

1K~1LDK
92,000円~187,000円

ザ・タワー芝浦

ザ・タワー芝浦

1R~1LDK
99,000円~207,000円

駅から探す エリアから探す 条件から探す

ご成約済みのお部屋