=>_%dt_path%_ not found
メインステージ南麻布2 4階 1Kの賃貸・部屋情報 |
  1. 港区賃貸トップ > 
  2. の賃貸物件一覧 > 
  3. メインステージ南麻布2の賃貸情報 > 
  4. 4階 1K

メインステージ南麻布2

4階 1K

 1Kタイプです。

契約済み

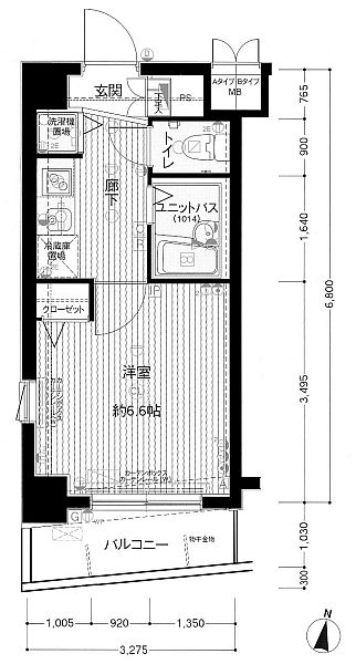
間取り
この物件に問い合わせる

物件詳細に戻る

物件名 メインステージ南麻布2
交通 南北線 麻布十番駅 徒歩8分
大江戸 麻布十番駅 徒歩8分
南北線 白金高輪駅 徒歩11分
三田線 白金高輪駅 徒歩11分
所在地

港区南麻布2-2-23

地図
家賃
管理費
間取 1K
面積 22.27㎡
敷金
礼金
入居 相談
構造 RC造
所在階/総階数 4階/地上8階建て
築年月 2002年09月
駐車場 なし
物件設備 分譲マンション、外観タイル貼り、TVモニター付インターフォン、オートロック、宅配ボックス、エレベータ、防犯カメラ、CATV、CSアンテナ、BSアンテナ、室内洗濯機置場、バストイレ別、浴室乾燥機、ガスコンロ、フローリング、エアコン、バルコニー
備考 諸条件などお部屋によって異なります(詳細、募集の有無などお気軽にお問い合わせ下さい)
問合せ番号 4302-13
 
拡大写真

マウスオーバー:拡大します
 

周辺地図



ストリートビュー

*この物件へのお問い合わせはタワーハウス管理まで*

03-6430-6698

info@tower-house.co.jp

お問い合わせフォーム
近くの物件
ガラ・ステージ麻布十番

ガラ・ステージ麻布十番

1K~1LDK
84,000円~175,000円

ルーブル南麻布

ルーブル南麻布

1K
80,000円~125,000円

ステージグランデ南麻布

ステージグランデ南麻布

1R
79,000円~95,000円

スカイコート麻布十番

スカイコート麻布十番

1K
81,500円~100,500円

駅から探す エリアから探す 条件から探す

ご成約済みのお部屋