=>_%dt_path%_ not found
藤和赤坂アパートメント 2階 3LDKの賃貸・部屋情報 |
  1. 港区賃貸トップ > 
  2. の賃貸物件一覧 > 
  3. 藤和赤坂アパートメントの賃貸情報 > 
  4. 2階 3LDK

藤和赤坂アパートメント

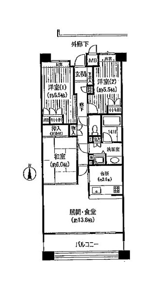
2階 3LDK

 分譲賃貸マンション
3LDKタイプのお部屋です。

契約済み

間取り
この物件に問い合わせる

物件詳細に戻る

物件名 藤和赤坂アパートメント
交通 銀座線 青山一丁目駅 徒歩5分
半蔵門線 青山一丁目駅 徒歩5分
大江戸 青山一丁目駅 徒歩5分

所在地

港区赤坂8-10-30

地図
家賃
管理費
間取 3LDK
面積 83.74㎡
敷金
礼金
入居 相談
構造 RC造
所在階/総階数 2階/地上10階建て
築年月 1999年02月
駐車場
物件設備 分譲マンション、外観タイル貼り、TVモニター付インターフォン、オートロック、宅配ボックス、エレベータ、防犯カメラ、駐車場有り、バイク置き場、駐輪場、バストイレ別、独立洗面、フローリング、床暖房、エアコン、バルコニー
備考 諸条件などお部屋によって異なります(詳細、募集の有無などお気軽にお問い合わせ下さい)
問合せ番号 4786-6
 
拡大写真

マウスオーバー:拡大します
 

周辺地図



ストリートビュー

*この物件へのお問い合わせはタワーハウス管理まで*

03-6430-6698

info@tower-house.co.jp

お問い合わせフォーム
近くの物件
パークルージュ赤坂檜町

パークルージュ赤坂檜町

1R~4LDK
109,000円~345,000円

パークオアシス赤坂丹後坂

パークオアシス赤坂丹後坂

1R~1SLDK
144,000円~350,000円

レジディア赤坂

レジディア赤坂

1K~3LDK
113,000円~400,000円

レジディア六本木檜町公園

レジディア六本木檜町公園

1R~4LDK
113,000円~385,000円

駅から探す エリアから探す 条件から探す

ご成約済みのお部屋