=>_%dt_path%_ not found
FORTIS水天宮前(フォルティス水天宮前 旧 モノトーノ水天宮前) 5階 1Rの賃貸・部屋情報 |
  1. 港区賃貸トップ > 
  2. の賃貸物件一覧 > 
  3. FORTIS水天宮前(フォルティス水天宮前 旧 モノトーノ水天宮前)の賃貸情報 > 
  4. 5階 1R

FORTIS水天宮前(フォルティス水天宮前 旧 モノトーノ水天宮前)

5階 1R

 広々ワンルームタイプ!バストイレ別!独立洗面台!ルーフバルコニーつき!

契約済み

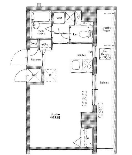
間取り
この物件に問い合わせる

物件詳細に戻る

物件名 FORTIS水天宮前(フォルティス水天宮前 旧 モノトーノ水天宮前)
交通 半蔵門線 水天宮前駅 徒歩6分
半蔵門線 清澄白河駅 徒歩13分
大江戸 清澄白河駅 徒歩13分
東西線 門前仲町駅 徒歩13分
大江戸 門前仲町駅 徒歩13分
所在地

江東区佐賀2-3-4

地図
家賃
管理費
間取 1R
面積 27.93㎡
敷金
礼金
入居 相談
構造 RC造
所在階/総階数 5階/地上8階建て
築年月 2006年02月
駐車場 31,500円~(詳しくはお問い合わせください)
物件設備 外観タイル貼り、TVモニター付インターフォン、オートロック、宅配ボックス、エレベータ、防犯カメラ、駐車場有り、バイク置き場、駐輪場、CSアンテナ、BSアンテナ、室内洗濯機置場、バストイレ別、独立洗面、オール電化、システムキッチン、IHクッキングヒーター、カウンターキッチン、フローリング、エアコン、バルコニー
備考
問合せ番号 929-3
 
拡大写真

マウスオーバー:拡大します
 

周辺地図



ストリートビュー

*この物件へのお問い合わせはタワーハウス管理まで*

03-6430-6698

info@tower-house.co.jp

お問い合わせフォーム
近くの物件
ヴィブアンセードル永代橋

ヴィブアンセードル永代橋

1DK
87,000円~94,000円

コンフォリア・リヴ木場公園

コンフォリア・リヴ木場公園

1K
80,000円~87,000円

コート門前仲町

コート門前仲町

1K
80,000円~87,000円

イーストコモンズ清澄白河パークフラッツ

イーストコモンズ清澄白河パークフラッツ

1K~2LDK
95,000円~187,000円

駅から探す エリアから探す 条件から探す

ご成約済みのお部屋