=>_%dt_path%_ not found
ベルファース芝パルク 4階 1LDKの賃貸・部屋情報 |
  1. 港区賃貸トップ > 
  2. の賃貸物件一覧 > 
  3. ベルファース芝パルクの賃貸情報 > 
  4. 4階 1LDK

ベルファース芝パルク

4階 1LDK

 TVモニター付きインターホン!エアコン・浴室乾燥機完備!

契約済み

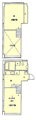
間取り
この物件に問い合わせる

物件詳細に戻る

物件名 ベルファース芝パルク
交通 三田線 芝公園駅 徒歩3分
浅草線 大門駅 徒歩6分
山手線 浜松町駅 徒歩7分
京浜東北線 浜松町駅 徒歩7分
所在地

港区芝公園2-9-10

地図
家賃
管理費
間取 1LDK
面積 40.84㎡
敷金
礼金
入居 即日入居可
構造 RC造
所在階/総階数 4階/地上5階建て
築年月 2004年08月
駐車場 なし
物件設備 TVモニター付インターフォン、オートロック、エレベータ、デザイナーズ、駐輪場、フローリング、エアコン、バルコニー
備考
問合せ番号 2968-2
 
拡大写真

マウスオーバー:拡大します
 

周辺地図



ストリートビュー

*この物件へのお問い合わせはタワーハウス管理まで*

03-6430-6698

info@tower-house.co.jp

お問い合わせフォーム
近くの物件
White Tower Hamamatsucho(ホワイトタワー浜松町)

White Tower Hamamatsucho(ホワイトタワー浜松町)

1R~3LDK
145,000円~366,000円

プレミアステージ芝公園

プレミアステージ芝公園

1R
144,000円~181,000円

レジディア芝大門2

レジディア芝大門2

1LDK
155,000円~179,000円

ジェノヴィア浜松町グリーンヴェール

ジェノヴィア浜松町グリーンヴェール

1K~1SLDK
94,500円~207,000円

駅から探す エリアから探す 条件から探す

ご成約済みのお部屋