=>_%dt_path%_ not found
リエトコート元赤坂 3階 1DKの賃貸・部屋情報 |
  1. 港区賃貸トップ > 
  2. の賃貸物件一覧 > 
  3. リエトコート元赤坂の賃貸情報 > 
  4. 3階 1DK

リエトコート元赤坂

3階 1DK

 分譲仕様の1DKタイプです。フリーレントあります。

契約済み

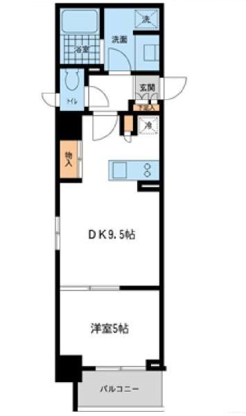
間取り
この物件に問い合わせる

物件詳細に戻る

物件名 リエトコート元赤坂
交通 銀座線 赤坂見附駅 徒歩5分
丸ノ内線 赤坂見附駅 徒歩5分
南北線 永田町駅 徒歩7分

所在地

港区元赤坂1-7-4

地図
家賃
管理費
間取 1DK
面積 36.60㎡
敷金
礼金
入居 相談
構造 RC造
所在階/総階数 3階/地上11階建て
築年月 2006年04月
駐車場 63,000円~(詳しくはお問合せ下さい)
物件設備 外観タイル貼り、TVモニター付インターフォン、オートロック、宅配ボックス、エレベータ、防犯カメラ、礼金ゼロ、フリーレント、BSアンテナ、室内洗濯機置場、バストイレ別、独立洗面、追い焚き、浴室乾燥機、システムキッチン、ガスコンロ、フローリング、エアコン、バルコニー
備考 諸条件などお部屋によって異なります(詳細、募集の有無などお気軽にお問い合わせ下さい)
問合せ番号 4739-2
 
拡大写真

マウスオーバー:拡大します
 

周辺地図



ストリートビュー

*この物件へのお問い合わせはタワーハウス管理まで*

03-6430-6698

info@tower-house.co.jp

お問い合わせフォーム
近くの物件
秀和赤坂レジデンシャルホテル

秀和赤坂レジデンシャルホテル

1R~1DK
60,000円~145,000円

パークアクシス赤坂見附

パークアクシス赤坂見附

1R~1LDK
129,000円~287,000円

パークルージュ赤坂檜町

パークルージュ赤坂檜町

1R~4LDK
109,000円~345,000円

MFPRコート赤坂見附

MFPRコート赤坂見附

1R~2LDK
148,000円~305,000円

駅から探す エリアから探す 条件から探す

ご成約済みのお部屋