=>_%dt_path%_ not found
リバーサイドハイツ 6階 2DKの賃貸・部屋情報 |
  1. 港区賃貸トップ > 
  2. の賃貸物件一覧 > 
  3. リバーサイドハイツの賃貸情報 > 
  4. 6階 2DK

リバーサイドハイツ

6階 2DK

 バス・トイレ別!追い炊き!インターネット光(NTT・USEN)!CATV(東京ベイネットワーク)!駐輪場!ペット相談!

契約済み

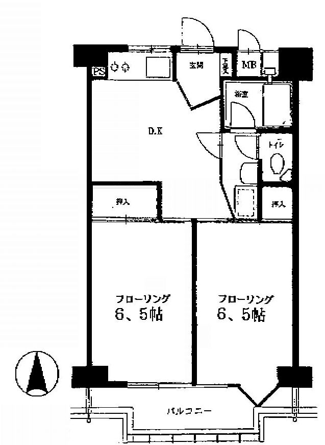
間取り
この物件に問い合わせる

物件詳細に戻る

物件名 リバーサイドハイツ
交通 大江戸 勝どき駅 徒歩4分
有楽町線 月島駅 徒歩7分
大江戸 月島駅 徒歩7分
日比谷線 築地駅 徒歩15分
所在地

中央区月島3-25-6

地図
家賃
管理費
間取 2DK
面積 47.20㎡
敷金 保証会社利用時 敷金1ヶ月
礼金
入居 相談
構造 SRC造
所在階/総階数 6階/地上11階建て
築年月 年月 1974年3月
駐車場 36,750円~(詳しくはお問い合わせください)
物件設備 エレベータ、防犯カメラ、ペット可、駐輪場、CATV、バストイレ別、独立洗面、追い焚き、エアコン
備考
問合せ番号 3048-13
 
拡大写真

マウスオーバー:拡大します
 

周辺地図



ストリートビュー

*この物件へのお問い合わせはタワーハウス管理まで*

03-6430-6698

info@tower-house.co.jp

お問い合わせフォーム
近くの物件
パークアクシス辰巳ステージ

パークアクシス辰巳ステージ

1R~4LDK
17,500円~206,000円

レジディア新川2

レジディア新川2

1DK~3LDK
123,000円~252,000円

AS ONE月島(アズワン月島)

AS ONE月島(アズワン月島)

1R~1LDK
95,000円~180,000円

リバーシア佃

リバーシア佃

1R~1DK
110,000円~140,000円

駅から探す エリアから探す 条件から探す

ご成約済みのお部屋